Beschrijving
Stijlvol wonen en werken aan de Oude Rijksweg Zuid 14 te Susteren.
Aan de Oude Rijksweg in Susteren staat dit luxe woonhuis dat perfect is voor zowel comfortabel wonen als professioneel werken aan huis. Met een royale woonkamer, drie ruime slaapkamers en een volledige onderkeldering biedt deze woning ongekende mogelijkheden en luxe. Of je nu droomt van een sfeervol familiehuis of een representatieve werkruimte aan huis, hier kan het allemaal.
De stijlvolle afwerking en mooie details zorgen voor een elegant en warm interieur, terwijl de grote werk- of praktijkruimte ideaal is voor ondernemers die een veelzijdige werkplek aan huis zoeken.
Indeling
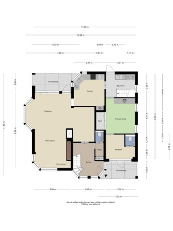
BEGANE GROND: Bij binnenkomst word je verwelkomd in een mooie hal met vide, die meteen een ruimtelijk gevoel geeft. In de hal zelf bevinden zich de meterkast, het toilet en trap naar de verdieping.
De ruime woonkamer is voorzien van een fraaie parketvloer en wordt op een elegante wijze onderbroken door een sfeervolle, ingebouwde gashaard. Aan de achterkant van de kamer is een grote schuifpui die toegang geeft tot het overdekte terras en de tuin.
De keuken heeft een tegelvoer en het keukenblok bestaat uit een hoekopstelling met eettafel als schiereiland aan de keuken vast. Het keukenblok is uitgerust met de gebruikelijke inbouwapparatuur. Vanuit de keuken is er uitzicht over de mooie tuin en het daarachter gelegen weiland.
Naast de keuken ligt de bijkeuken, van waaruit de toegang is tot het souterrain, de praktijkruimte en de tuin.
In de bijkeuken is een extra aanrechtblok en bevinden zich de aansluitingen voor wasmachine en wasdroger.
Eerste verdieping
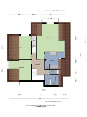
EERSTE VERDIEPING: Via de vide op de eerste verdieping kun je kiezen uit 3 royale slaapkamers, een ruime badkamer, een douche of je gaat via de vaste trap naar de zolder.
De master-bedroom ligt aan de achterzijde, heeft een badkamer ensuite en is ruim 27 m² groot. De ruime badkamer ensuite is uitgerust met een inloopdouche, ligbad en een dubbele wastafel.
De andere twee slaapkamers, zijn respectievelijk 18 m² en 16 m² groot. Alle slaapkamers beschikken over kunststof kozijnen met dubbel glas en zijn voorzien van rolluiken. De rolluikkasten zijn bovendien geïsoleerd zodat kou en geluid buiten de deur blijven.
In de tweede badkamer vind je een inloopdouche en een wastafel en er is nog een apart toilet op deze verdieping.
Tweede verdieping
TWEEDE VERDIEPING: Ruime bergzolder die bereikbaar is middels een vaste trap. Op zolder bevinden zich de technische installaties zoals de CV-ketel en de luchtbehandelingsinstallatie met sensor.
Overige verdiepingen
PRAKTIJKRUIMTE: In 2020 is in de voormalige garage een schoonheidssalon gerealiseerd. Deze salon is uitgerust met een keukenblok met wasbak, 2 inbouwkasten en kunststof ramen die zorgen voor veel natuurlijke lichtinval.
De salon heeft een aparte entree, een wachtruimte en beschikt over een eigen toilet.
Vanuit de woning is de salon via de bijkeuken te bereiken.
SOUTERRAIN: Vanuit de bijkeuken kun je ook naar het souterrain. Het souterrain is opgedeeld in 2 kleinere en 3 grote ruimtes. De drie grote ruimtes zijn voorzien van verwarming en alle vertrekken kunnen multifunctioneel gebruikt worden.
Het souterrain heeft een vaste bekabeling van het internet en wordt deels verwarmd door middel van een infraroodpaneel.
Tuin
TUIN en TERRAS
In de royale achtertuin staat een vrijstaande houten garage met vliering. De garage beschikt over elektriciteit en is voorzien van een tegelvloer.
De tuin, met veel privacy en vrij uitzicht over het weiland daarachter, bestaat uit een groot gazon, een mooie vijver, diverse borders met bloemen en planten en een overdekt terras waarop je onder het 4,5 meter brede zonnescherm lekker kunt genieten van een drankje.
Bijzonderheden
BEREIKBAARHEID
Met een ligging dichtbij de provinciale wegen N296, N276 en de Rijksweg A2 is de woning aan de Oude Rijksweg Zuid 14 zeer goed bereikbaar.
Bijzonderheden:
- Bouwjaar: 1991
- Perceeloppervlakte: 970 m²
- Woonoppervlakte: ca. 290 m²
- Overige inpandige ruimte: ca. 148 m²
- Externe bergruimte: ca. 35 m²
- Inhoud: ca. 1200 m³
- Extra: 14 zonnepanelen, goed voor 4490 kWh