Beschrijving
Ruime tussenwoning met garage.
Aan de Oude Rijksweg Noord 51 in Susteren ligt deze goed onderhouden tussenwoning met garage. Deze gezinswoning beschikt over een woonkamer, keuken, een serre, een toilet, 3 slaapkamers, een badkamer en is geheel voorzien van rolluiken.
De op het westen gelegen tuin heeft een terras en komt aan de achterzijde uit op een eigen weg.
De tuin is geheel omsloten en verhard en biedt volop zitruimte. Voor bergruimte beschik je over een zolder, een bijkeuken, kleine voorraadkelder en een garage.
Indeling
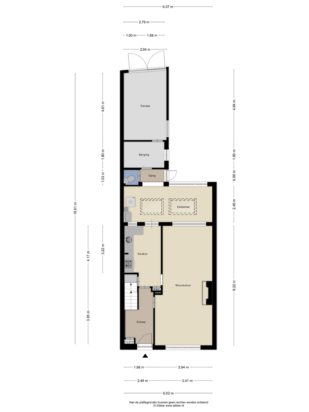
BEGANE GROND
Via de voordeur van de woning kom je binnen in de gang met daarin de meterkast en de trap naar de verdieping. Vanuit de gang kun je naar de woonkamer en naar de keuken. Vanwege de grote ramen aan de voorzijde en in de achtergevel komt er veel natuurlijk licht binnen, wat zorgt voor een prettige sfeer in de woning. De fraaie parketvloer, de open haard en de sierlijsten op het plafond geven de ruimte een authentieke uitstraling.
De keuken, gelegen naast de woonkamer heeft een keukenblok in een hoekopstelling. Het keukenblok is voorzien van een combi-oven, een koelkast, een 4-pits gasfornuis, een afzuigkap en een kunststof werkblad met daarin een RVS spoelbak.
In de keuken is verder nog de toegang tot de voorraadkelder.
Achter de woonkamer en keuken is een serre aangebouwd die voorzien is van grote ramen en twee lichtkoepels waardoor er veel natuurlijk licht de ruimte binnenkomst. In de serre bevinden zich ook de witgoedaansluitingen en zich het toilet. Ook de achterdeur naar de tuin is in de serre aanwezig.
Tussen de serre en de garage is een kleine hal waarin extra bergruimte aanwezig is.
Eerste verdieping
Via de trap in de gang achter de voordeur, kom je op de overloop van de eerste verdieping, waar de 3 slaapkamers zijn gesitueerd waarvan een met airco. Deze slaapkamers zijn voorzien van een parketvloer en kunststof kozijnen met dubbelglas en rolluiken. Verder is op de eerste verdieping de badkamer gelegen die is uitgerust met een douche, een toilet en een wastafel.
Tweede verdieping
Op de overloop is tevens de vlizotrap die toegang geeft tot de ruime bergzolder waar ook de CV ketel is geplaatst.
Tuin
De op het westen gelegen tuin is voorzien van een aantal kleine groene borders en geheel omsloten en verhard en voorzien van een zonneluifel. De tuin biedt volop zitruimte om 's zomers lekker te genieten met vrienden of familie.
GARAGE
De garage, die achter de woning is gesitueerd, is voorzien van houten garagedeuren.
De garage biedt ruimte voor één auto of enkele fietsen en het benodigde gereedschap en is bereikbaar via de weg aan de achterzijde van het perceel.
Bijzonderheden
OVERIGE KENMERKEN
• CV-ketel RADSON EHR (1997) / geiser Vaillant premium en een Itho Daalderop keukenboiler (2025), allen eigendom
• Deze woning ligt op enkele minuten loopafstand van het natuurgebieden De Doort.
• Het NS-station met bushalte en het winkelcentrum liggen op 15 minuten loopafstand.
• Dichtbij de provinciale wegen N276 en N296 en de Rijkswegen A2 en A73 waardoor de locatie goed bereikbaar is.
BIJZONDERHEDEN
Op de gronden achter de woning wordt de komende jaren de nieuwbouwwijk Louerveld gerealiseerd. De verwachting dat de werkzaamheden hier in 2027 zullen starten.
De privacy van deze woning blijft echter behouden doordat er achter de weg een nog aan te leggen groenstrook en laagbouw wordt gerealiseerd. Voor meer informatie hierover, kijk op www.louerveld.nl.
Belangrijke informatie voor de koper:
Bouwkundige keuring
Koper is te allen tijde gerechtigd om voor eigen rekening een bouwkundig onderzoek te laten verrichten, dan wel andere adviseurs te raadplegen teneinde een goed inzicht te verkrijgen in de staat van onderhoud of andere aspecten van de onroerende zaak. Koper dient bij het doen van een bod wel direct aan te geven of hij een dergelijk onderzoek wenst.
Opmerking
Ondanks het feit dat wij zeer secuur te werk gaan bij het verzamelen van de gegevens, zijn onjuistheden niet altijd uit te sluiten.
Er kunnen aan deze omschrijving geen rechten worden ontleend.