Verkocht: Hoofdstraat 53, 6061 CB Posterholt
Verkocht: Hoofdstraat 53, 6061 CB Posterholt
Verkocht: Hoofdstraat 53, 6061 CB Posterholt
Verkocht B

Hoofdstraat 53, 6061 CB Posterholt

Beschrijving Hoofdstraat 53

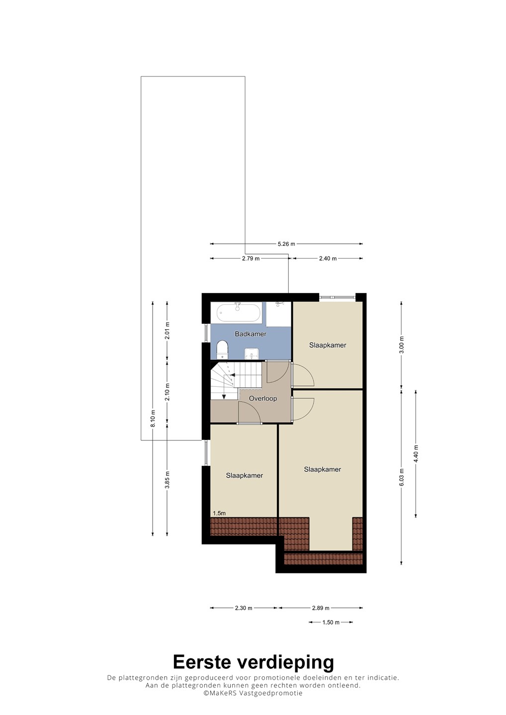
Moderne halfvrijstaande eengezinswoning.
Je droomt van een verrassend ruime gezinswoning in het hart van Posterholt? Grijp je kans, want deze moderne, halfvrijstaande en instapklare woning aan de Hoofdstraat 53 heeft alles wat je zoekt.
Met drie slaapkamers, een onderhoudsvriendelijke tuin, ee...

Kenmerken

Type object Woonhuis, eengezinswoning, geschakelde twee onder een kap woning
Bouwperiode 1989
Status Verkocht
Aangeboden sinds Zondag 2 februari 2025