Beschrijving
Halfvrijstaande woning in rustige buurt.
Deze halfvrijstaande woning met losse garage en berging, ligt aan een rustige woonstraat in de wijk Munsterveld te Susteren.
Met drie slaapkamers is deze woning geschikt voor jonge, groeiende gezinnen.
De ramen in de woning zijn voorzien van kunststof kozijnen met dubbel glas en rolluiken.
Op de verdieping is de hele vloer voorzien van een laminaatvloer.
Alle voorzieningen, zoals de basisschool, huisartsen, winkels en openbaar vervoer liggen op minder dan 10 minuten loopafstand van deze woning.
Indeling
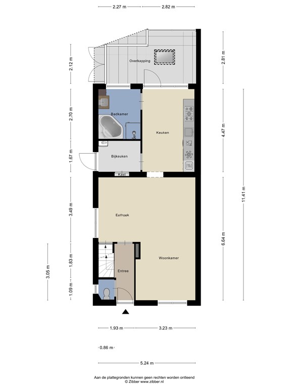
BEGANE GROND:
In de hal achter de voordeur vind je het toilet en trap naar de verdieping. Daarna kom je in de ruime woonkamer die is voorzien van een laminaatvloer en grote ramen aan de voor- en zijkant, waardoor veel licht de ruimte binnenkomt. In de woonkamer bevindt zich ook de toegangsdeur tot de kelder.
Achter de kamer is de eveneens ruime keuken met daarin een tegelvoer. Het keukenblok is uitgerust met een 5 pist gasfornuis, een RVS afzuigkap, een magnetron, een vaatwasser, een koel-vriescombinatie en een RVS spoelbak.
Naast de keuken is een badkamer gerealiseerd. De badkamer beschikt over een douche, een hoekbad en een badkamermeubel met wasbak. Ook bevindt zich naast de keuken een gang naar de buitendeur aan de zijkant van de woning. In deze gang is de CV-ketel geplaats en zijn er aansluitmogelijkheden voor witgoed. In deze ruimte bevindt zich ook de toegang tot de kruipruimte.
De buitendeur aan de achterzijde van de keuken geeft toegang tot het overdekte terras en het gezamenlijke erf vóór de garage en berging.
Eerste verdieping
EERSTE VERDIEPING:
Op de verdieping bevinden zich drie slaapkamers en een ruimte met mogelijkheden voor een tweede douche of wasruimte.
De grootste slaapkamer ligt aan de achterkant van de woning, heeft een grootte van bijna 12m².
De andere twee slaapkamers zijn respectievelijk 10 m² en 5 m².
Alle slaapkamers beschikken over kunststof kozijnen met dubbel glas en rolluiken en zijn voorzien van een laminaatvloer die doorloopt over de overloop.
Tweede verdieping
TWEEDE VERDIEPING:
Bergzolder, bereikbaar met een losse trap.
Tuin
TUIN:
De voortuin is onderhoudsvriendelijk door de combinatie van bestrating, grind en een plantenbak.
De achtertuin bestaat in feite uit een klein, overdekt terras en een gezamenlijk erf waaraan de garage en de ruime berging zijn gelegen.
Bijzonderheden
Bijzonderheden:
- Recht van Overpad over de oprit en erf.
- Centrale ligging, op minder dan 10 minuten loopafstand van alle winkelvoorzieningen, de basisscholen en het gezondheidscentrum.
- Het NS-station en bushalte liggen op respectievelijk 15 en 5 minuten loopafstand.
- Dichtbij de provinciale wegen N276 en N296 en de Rijkswegen A2 en A73 waardoor de locatie goed bereikbaar is.
Plattegronden
177915643_1585946_munst_begane_grond_first_design_20251013_90bab9.jpg
177915643_1585946_munst_eerste_verdiepi_first_design_20251013_f64951.jpg
177915643_1585946_munst_garage_first_design_20251013_ba9222.jpg
177915643_1585946_munst_kelder_first_design_20251013_778c5c.jpg
177915643_1585946_munst_zolder_first_design_20251013_0c3a43.jpg