Beschrijving
Ruime halfvrijstaande woning met vrijstaande, verlengde garage, ligt in een rustige woonstraat in de wijk Mariaveld te Susteren.
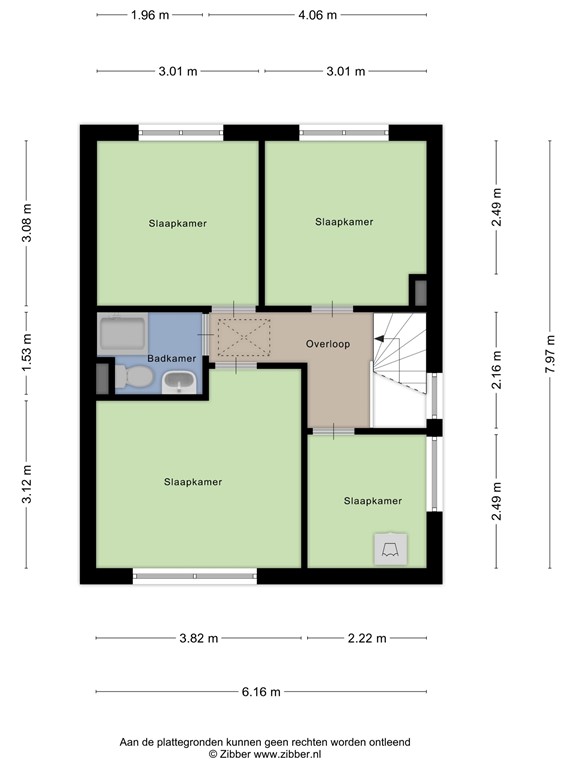
Met maar liefst vier slaapkamers is dit een ideale woning voor jonge, groeiende gezinnen.
De woning is geheel uitgerust met houten kozijnen, voorzien van enkelglas en rolluiken.
Indeling
Begane grond
Via de voordeur kom je in de hal waarin zich de meterkast, het toilet en de toegang tot de kelder bevinden. Onder de trap naar de verdieping is nog een kastruimte met daarin een elektrische boiler (80l).
Via de hal kun je naar de woonkamer of naar de keuken. De keuken is half open en met een “bar” is deze gescheiden van de woonkamer.
De keuken bestaat uit een keukenblok dat is voorzien van een kunststof werkblad en is uitgerust met de gebruikelijke, maar enigszins verouderde inbouwapparatuur. De houten pui aan de achterzijde geeft toegang tot het terras.
Naast de keuken is de ruime woonkamer die is voorzien van een houten vloer en een open haard.
Vanwege de grote ramen aan de voor- en achterkant, beschikt de woonkamer over veel natuurlijke lichtinval. Het houten kozijn aan de achterzijde heeft tevens een loopdeur die, net als bij de keuken, toegang geeft tot het terras.
Eerste verdieping
Eerste verdieping
Op de verdieping zijn 4 slaapkamers en een badkamer aanwezig. De slaapkamers beschikken allemaal over een laminaatvloer.
Alle ramen zijn voorzien van houten kozijnen, enkelglas en rolluiken.
In de badkamer vind je een zitbad met douche, een toilet en een wasbak. De ruimte heeft een tegelvloer en ook de muren zijn half betegeld. Verder beschikt de badkamer over elektrische ventilatie en wordt de ruimte verwarmd met een radiator.
Tweede verdieping
Tweede verdieping
Tot slot beschikt de woning over een ruime bergzolder die middels een vlizotrap te bereiken is en waar ook de recent vernieuwde (Intergas, 2023), gehuurde CV-ketel is geplaatst. De ruimte bergzolder biedt de mogelijk om hier extra woonruimte te creëren.
Tuin
Tuin en garage
Aan de achterzijde van de woning is een overkapping geplaatst van waaronder je kunt genieten van de achtertuin met diverse beplanting. Hier staat ook de garage, die langer is dan de standaard-garage en ruimte biedt aan 2 auto’s. Deze vrijstaande, gemetselde garage heeft een bitumen dak en een kantelpoort. De lange oprit aan deze zijde van de woning biedt ruimte om meerdere auto’s te parkeren.
De achtertuin bestaat voornamelijk uit een terras en beplanting en is op het oosten georiënteerd.
De lange zijtuin en ruime voortuin maken het geheel compleet.
Bijzonderheden
Locatie:
Hendriklaan 14 te Susteren ligt aan een rustige straat met weinig doorgaand verkeer.
De woning ligt op enkele minuten fietsafstand van het centrum van Susteren en het NS-station.
Het winkelcentrum met supermarkt, medisch centrum (huisarts/apotheek/fysio) en diverse middenstand ligt op minder dan 500m afstand. Verder liggen een basisschool, een sporthal en een buitensportaccommodatie in de buurt.
Met de provinciale weg N297, N276 en de Rijkswegen A2 / A73 in de directe nabijheid is de locatie goed bereikbaar.
Bijzonderheden:
- Bouwjaar: 1968
- Perceeloppervlakte: 326 m²
- Woonoppervlakte: ca. 121 m²
- Externe bergruimte: ca. 24 m²
- Inhoud: ca. 424 m³
- Verwarming: CV ketel Intergas, huur Volta
- Electrische Boiler Daalderop
Plattegronden
179364946_1590513_hendr_begane_grond_first_design_20251115_2ac71e.jpg
179364946_1590513_hendr_eerste_verdiepi_first_design_20251115_f75194.jpg
179364946_1590513_hendr_garage_first_design_20251115_fdd36e.jpg
179364946_1590513_hendr_zolder_first_design_20251115_f0589f.jpg