Beschrijving
Halfvrijstaande woning met garage en uitzicht.
Aan de Bosstraat 51 in Susteren ligt deze halfvrijstaande, geschakelde woning met fraai uitzicht aan de achterkant van de woning. Deze gezinswoning beschikt over een woonkamer, open keuken, een serre, 2 ruime slaapkamers, een badkamer en een bergzolder.
De op het zuiden gelegen tuin heeft een terras en een tuinpad naar achteren. De tuin is deels met borders ingericht en biedt volop zitruimte. Voor bergruimte beschik je over een garage en een tuinhuis.
Indeling
BEGANE GROND
Via de entree aan de zijkant van de woning kom je binnen in de hal met daarin de meterkast en het toilet. Van hieruit kun je naar de woonkamer met aan de achterkant de open keuken in een U-opstelling. Vanwege de grote ramen aan de voorzijde en de schuifpui in de serre aan de achterzijde komt er veel natuurlijk licht binnen, wat zorgt voor een fijne woonsfeer. De keuken is voorzien van een combi-oven, een koelkast, een 5-pits gasfornuis, een afzuigkap, een vaatwasser en een RVS spoelbak.
De achterwand van de keuken is geheel betegeld.
Achter de keuken is een serre aangebouwd die met een grote schuifpui in verbinding staat met het terras en de rest van de tuin. Verder bevindt zich in de serre de toegang tot de naastgelegen garage.
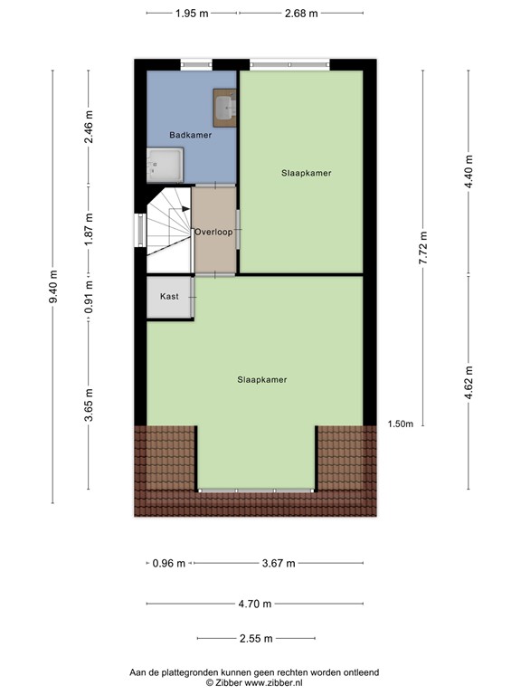
Eerste verdieping
EERSTE VERDIEPING
Via de trap in de hal kom je op de overloop van de eerste verdieping, waar de oorspronkelijk 3 slaapkamers zijn verbouwd tot 2 ruime slaapkamers. Beide slaapkamers zijn voorzien van een laminaatvloer en kunststof kozijnen met dubbelglas. Verder is op de eerste verdieping de badkamer gelegen die is uitgerust met een douche en een wandmeubel met wasbak.
Op de overloop is tevens de vlizotrap die toegang geeft tot de ruime bergzolder.
Overige verdiepingen
GARAGE
De garage, die naast de serre is gesitueerd, is voorzien van een elektrische sectionaalpoort.
De garage biedt ruimte voor één auto, enkele fietsen en het benodigde gereedschap.
In de garage zijn ook de witgoedaansluitingen aanwezig.
Tuin
TUIN
Door de schuifpui in de serre kom je op het terras en in de rest van de tuin. Van hieruit heb je een wijds uitzicht over de weilanden en het bos achter de woningen.
Het houten tuinhuis geeft je opbergmogelijkheden voor het tuingereedschap of tuinmeubilair.
Bijzonderheden
OVERIGE KENMERKEN
• CV-ketel Quinta 28C (2007) / (huur Volta, € 27,81 per maand)
• Deze woning ligt op enkele minuten loopafstand van de natuurgebieden IJzerenbosch, ’t Slekkerhout en dichtbij Europarcs Resort
Hommelheide.
• Speeltuintje ós Parkje direct om de hoek.
• Basisschool, kinderopvang, sporthal en winkels op 10 minuten loopafstand.
• Het NS-station met bushalte liggen eveneens op 10 minuten loopafstand.
• Dichtbij de provinciale wegen N276 en N296 en de Rijkswegen A2 en A73 waardoor de locatie goed bereikbaar is.
Plattegronden
179882260_1594718_bosst_begane_grond_first_design_20251129_7bcf55.jpg
179882260_1594718_bosst_berging_first_design_20251129_25c5ee.jpg
179882260_1594718_bosst_eerste_verdiepi_first_design_20251129_ae9b94.jpg
179882260_1594718_bosst_zolder_first_design_20251129_875f3d.jpg