Beschrijving

Instapklare hoekwoning met ruime carport.

Ben je op zoek naar instapklare, ruime en moderne gezinswoning? Dan is deze goed onderhouden hoekwoning gelegen aan Ruimstraat 2 te Maasbracht iets voor jou. Deze woning beschikt over drie slaapkamers, een garage, een ruime carport, een aluminium overkapping en een onderhoudsvriendelijke tuin.

De woning is uitgerust met duurzame voorzieningen zoals 10 zonnepanelen, airconditioning, HR++ beglazing, elektrisch bedienbare rolluiken en voorzien van dak - en spouwmuurisolatie.
De woning ligt in een kindvriendelijke wijk in Maasbracht, op loopafstand van het Breerpark met kinderboerderij en speeltuin. Ook de gezellige binnenhaven, winkels, scholen en sportvoorzieningen liggen om de hoek. Dankzij de nabijgelegen A2 en A73 ben je in korte tijd in Eindhoven of Maastricht.

Indeling

Begane grond
Via de entree kom je in de hal met meterkast, toilet met fonteintje en de trap naar de bovenverdieping. 
De ruime woonkamer heeft aan de voor- en achterzijde grote raamopeningen die voor veel natuurlijke lichtinval zorgen. 
De openslaande tuindeuren aan de achterzijde geven direct toegang tot de zonnige tuin met terrasoverkapping waar je heerlijk onder kunt genieten. 
De woonkamer is naast de reguliere verwarming voorzien van airconditioning om te verwarmen of te koelen. 
De open keuken in hoekopstelling is compleet uitgerust met een vaatwasser, keramische kookplaat, oven, combimagnetron en afzuigkap. Aansluitend bevindt zich de bijkeuken met toegang tot zowel de tuin als de garage. De gehele begane grond is voorzien van een stijlvolle donkere tegelvloer met vloerverwarming, ook in de hal.

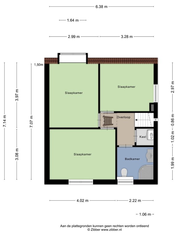
Eerste verdieping

Eerste verdieping
Hier bevinden zich drie comfortabele slaapkamers, allemaal voorzien van een laminaatvloer. 
De nette badkamer beschikt over een douchecabine, toilet en wastafelmeubel. Op de overloop is een airco geplaatst en er is een aparte bergruimte voor de CV-installatie.

Tweede verdieping

Tweede verdieping
Via een vlizotrap bereik je een handige bergzolder, makkelijk voor het opbergen van spullen.

Tuin

Tuin
De royale, volledig omheinde achtertuin ligt op het zuidoosten en biedt volop privacy. 
Je vindt hier een terras met overkapping, een tuinhuis en groene borders. 
De garage is voorzien van een elektrische poort. Aan de voorzijde ligt een ruime oprit met carport en voldoende parkeergelegenheid.

Bijzonderheden

Bijzonderheden:
Bouwjaar: 			                                                         1977
Perceeloppervlakte: 		                                          300 m²
Gebruiksoppervlakte wonen:                                    96 m²
Gebruiksoppervlakte overige inpandige ruimte:    21 m²
Gebouw gebonden buitenruimte:                            54 m²
Externe bergruimte:                                                      7 m²
Bruto vloeroppervlak:                                               191 m²
Inhoud:                                                                        434 m³

Verwarming: 			       HR combi-CV ketel Nefit 2019 (eigendom)
                                           Airco Daikin 2022
                                           Vloerverwarming (gedeeltelijk)

 Extra:                               10 Zonnepanelen (2021 eigendom)
Opmerking:
Alle opgegeven maten en oppervlakken zijn indicatief.  
Ondanks het feit dat wij zeer secuur te werk gaan bij het verzamelen van de gegevens, zijn onjuistheden niet altijd uit te sluiten. 
Er kunnen echter geen rechten aan worden ontleend, verkopers noch verkopend makelaar kunnen aansprakelijk worden gehouden.

Kenmerken