Beschrijving

Fraaie drive-in woning met verrassend veel woonruimte.
Deze instapklare drive-in woning in de Heerlense wijk Vrieheide is modern ingericht en biedt veel woon- en bergruimte. De voorkant is gelegen aan een voetpad waar geen verkeer is, de achterzijde grenst aan de openbare weg. 
De woning heeft 3 slaapkamers en een grote garage en is geheel uitgerust met kunststof kozijnen, voorzien van dubbelglas en rolluiken en beschikt over maar liefst 16 zonnepanelen.

Indeling

Begane grond
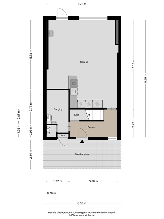
Via de voordeur kom je binnen in de hal van het souterrain waarin een tegelvloer is gelegd. Hier bevindt zich een bergruimte waar de CV-ketel hangt en de trap naar de woonverdiepingen. 
In de bergruimte is een keukenblok geplaatst voor extra opbergmogelijkheden. 
Vanuit de hal loop je de grote garage binnen, die  aan de achterzijde ontsloten is met een elektrische sectionaalpoort en een loopdeur.
Deze garage, van bijna 40 m², is voorzien van elektriciteit, verwarming en water. In de garage zijn ook de aansluitingen voor het witgoed voorhanden.
Tussen de garage en de openbare weg is er nog een beklinkerde achtertuin van ongeveer 40 m².

Eerste verdieping

Eerste verdieping
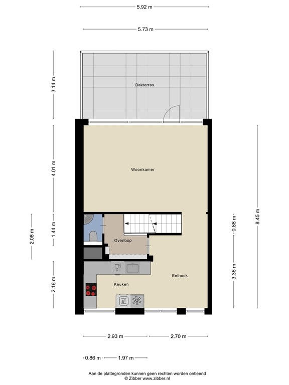
Boven aan de trap op de eerste verdieping is een kleine overloop. Hier is het toilet aanwezig en de toegang tot de woonkamer.  
De ruime woonkamer is aan de achterzijde voorzien van een grote pui waardoor er veel natuurlijk licht de woning binnenkomt. De grote pui aan de achterzijde van de woonkamer heeft een loopdeur die toegang geeft tot het ruime balkon (18m²). Met de ligging op het zuiden, kun je hier heerlijk genieten van de zon.
Van achter naar voren gaat de woonkamer over in een eetgedeelte. Tussen het woon- en eetgedeelte ligt de trap naar de 2e verdieping. Grenzend aan het eetgedeelte ligt de moderne open keuken, die in 2022 nog geheel is vernieuwd en er schitterend uitziet. 
Ook aan deze kant van de woning zijn grote ramen aanwezig die er voor zorgen dat de kamer licht en sfeervol is.

Tweede verdieping

2e verdieping
Op overloop van de 2e verdieping is een kastenwand gemaakt waardoor hier veel bergruimte is. Verder zijn hier 3 slaapkamers en een badkamer aanwezig. De slaapkamers beschikken allemaal over een laminaatvloer en alle ramen zijn voorzien van kunststof kozijnen, dubbelglas en rolluiken.  De beide slaapkamers aan de achterzijde hebben verder nog de beschikking over een balkon.
In de badkamer vind je een ligbad met douche en een douchewand, een toilet en een badkamermeubel met wasbak. De badkamer is geheel betegeld en beschikt over elektrische ventilatie. De ruimte wordt verwarmd met een designradiator.

Bijzonderheden

Locatie
Italiëlaan 22 te Heerlen ligt aan een rustige straat met weinig doorgaand verkeer. De achterzijde grenst aan de openbare weg, de voorzijde aan een voetpad. 
De woning ligt dichtbij de voorzieningen, zoals winkels, scholen en openbaar vervoer en op slechts enkele minuten fietsafstand ligt het mooie natuurgebied Brunssummerheide.

Bijzonderheden:
- Bouwjaar: 1961
- Perceeloppervlakte: 138 m²
- Woonoppervlakte: ca. 111 m²
- Inhoud: ca. 524 m³
- Verwarming: CV ketel Bosch 30 HRC, huur
- Zonnepanelen 16 stuks

Kenmerken